

PORTFOLIO home
8355 Camargo
8355 CAMARGO RD, CINCINNATI, OH 45243, USA
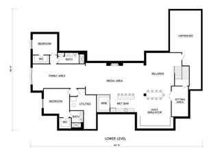
Behold this sprawling estate on 3 rolling acres in Indian Hill! Our European-style ranch is an entertainer’s dream and this home will take your breath away. The main level of the home is the perfect space for hosting family and friends. Start with a cocktail in the great room bar area or step outside onto the expansive covered porch and grab a drink at the bar area outside. If there’s a chill in the air, warm up by the fireplace in the great room or on the covered porch. Step back inside to take in the stunning kitchen equipped with a scullery for all your hosting needs. The dining room and study can be found off the main living space as well as the owner’s suite and guest retreat area. The entertaining continues in the lower level with two additional bedrooms, a media area, bar area with glass-walled wine room, golf simulator, billiards area and private sitting room. If you prefer hanging outside, challenge your guests to a game of pickle ball out back on the private pickle ball courts.
SPECIFICATIONS
6,696
total sq. ft
4
bedrooms
4.5
bathrooms
FLOOR PLANS




























